To be sold via online auction - powered by The Auction Group
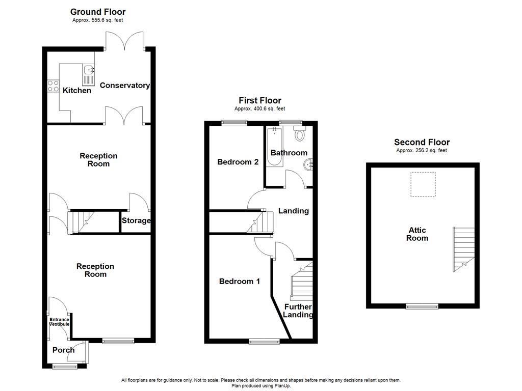
Welcome to Summit Street, Heywood - a charming property with great potential for those looking to create their dream home! This delightful house boasts two reception rooms, perfect for entertaining guests or simply relaxing with your loved ones. With three bedrooms, there's ample space for a growing family or for hosting overnight guests.
The property features one bathroom, ensuring convenience for all residents. Additionally, the handy attic room provides extra space that can be utilised as a home office, playroom, or even a cosy reading nook with fantastic views of the surroundings. Situated in a prime location, this house offers easy access to local amenities, making daily errands a breeze. The spacious layout of the home presents an excellent opportunity for development, allowing you to customise the property to suit your unique style and preferences.
Auction Details
To be sold via Online Auction, via unconditional terms,completion strictly within 28 days
Bidding window opens - TBC
Auction Ends- TBC
Starting price - £130,000 (Reserve price is higher & unpublished)
Fees
All fees are payable by banks transfer only (we do not take card payments )
Buyers premium - Please note that there is a buyers premium that applies to this lot of £5000 inc vat payable by the buyer within 2 hours of winning the auction. The buyers premium does not constitute part of the sale price, this is the auctioneers fee and is to be paid over and above the sale price paid to the vendor.
Searches - searches have been ordered and will be made available for download from The Auction Groups website prior to bidding taking place.
Viewings
To view the property please visit The Auction Groups website - www.the-auctiongroup.co.uk for viewings
A
* Generally speaking Guide Prices are provided as an indication of each seller's minimum expectation, i.e. 'The Reserve'. They are not necessarily figures which a property will sell for and may change at any time prior to the auction. Virtually every property will be offered subject to a Reserve (a figure below which the Auctioneer cannot sell the property during the auction) which we expect will be set within the Guide Range or no more than 10% above a single figure Guide.
Submit an enquiry and someone will be in contact shortly.
By setting a proxy bid, the system will automatically bid on your behalf to maintain your position as the highest bidder, up to your proxy bid amount. If you are outbid, you will be notified via email so you can opt to increase your bid if you so choose.
If two of more users place identical bids, the bid that was placed first takes precedence, and this includes proxy bids.
Another bidder placed an automatic proxy bid greater or equal to the bid you have just placed. You will need to bid again to stand a chance of winning.