To be sold via online auction - powered by The Auction Group - are pleased to introduce this deceptively spacious duplex apartment to the market. Situated within walking distance to Preston City Centre and close proximity to commuter links and schools.
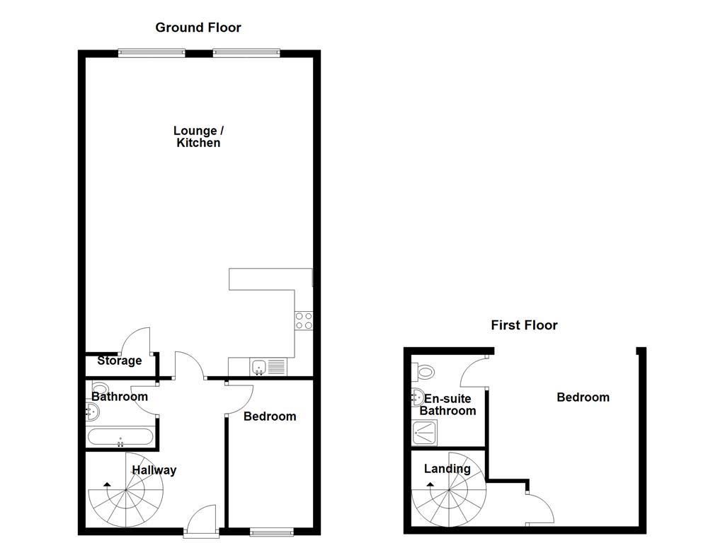
This property is well suited for investors and briefly comprises of a large living kitchen diner, a three piece family bathroom suite and two bedrooms with the primary bedroom overlooking the living kitchen diner and boasts access to an en suite.
Externally there is a car park providing off road parking for residents.
To be sold via Online Auction, via unconditional terms, completion strictly within 28 days
Bidding window opens - 9am 29th April 2025
Window Closes 15:00pm 29th April 2025
Starting price - £40,000 (Reserve price is higher & unpublished)
Fees
All fees are payable by banks transfer only (we do not take card payments)
Buyers premium - Please note that there is a buyers premium that applies to this lot (please check the legal pack for further details,) payable by the buyer within 2 hours of winning the auction. The buyers premium does not constitute part of the sale price, this is the auctioneers fee and is to be paid over and above the sale price paid to the vendor.
Searches - searches have been ordered and will be made available for download from The Auction Group's website prior to bidding taking place.
* Generally speaking Guide Prices are provided as an indication of each seller's minimum expectation, i.e. 'The Reserve'. They are not necessarily figures which a property will sell for and may change at any time prior to the auction. Virtually every property will be offered subject to a Reserve (a figure below which the Auctioneer cannot sell the property during the auction) which we expect will be set within the Guide Range or no more than 10% above a single figure Guide.
Submit an enquiry and someone will be in contact shortly.
By setting a proxy bid, the system will automatically bid on your behalf to maintain your position as the highest bidder, up to your proxy bid amount. If you are outbid, you will be notified via email so you can opt to increase your bid if you so choose.
If two of more users place identical bids, the bid that was placed first takes precedence, and this includes proxy bids.
Another bidder placed an automatic proxy bid greater or equal to the bid you have just placed. You will need to bid again to stand a chance of winning.